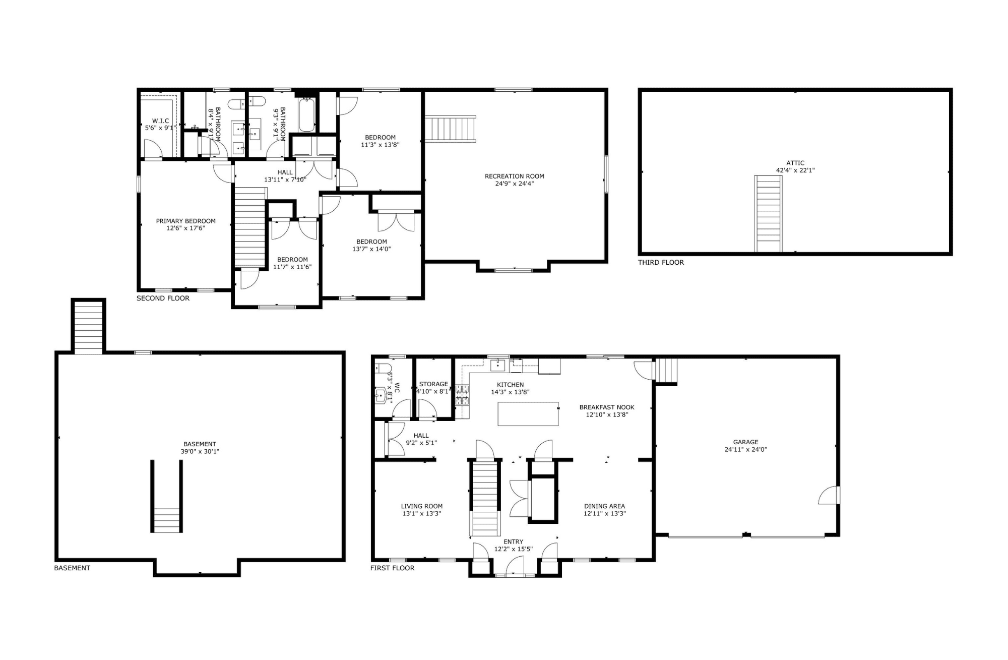
Bedrooms

4

Bathrooms

2 Full, 1 Half

Assessed Value

$1,043,800

Property Type

Single Family

Neighborhood

Wakefield

Lot Size

12,005

Square Footage

2,762

Garage

2 Off-Street Parking Spaces, 2 Attached Garage Spaces

Year Built

2019

About The Property

This beautifully maintained newer construction home offers an open floor plan perfect for modern living. Featuring gleaming hardwood floors throughout, the spacious interior includes a bonus family room above the garage, ideal for entertainment or relaxation. The home boasts 4 generously sized bedrooms, including a master suite, and 2.5 bathrooms. Enjoy the convenience of second-floor laundry and the comfort of a large corner lot with a big backyard, perfect for outdoor activities and gatherings. The yard is a mix of fence and beautiful trees which adds privacy and security for pets and children. Located in a desirable Wakefield neighborhood, this home blends style, comfort, and functionality—ready to move in!

Watch The Video Tour

Group 5 Created with Sketch.

Nearby Schools

Elementary School: Woodville Elementary School

Middle School: Galvin Middle School

High School: Wakefield Memorial High School

Property Location